
Bosch/Junkers
2 952,00 Kč bez DPH
3 571,92 Kč
Katalogové číslo: 87081203880
Dostupnost: prodej ukončen
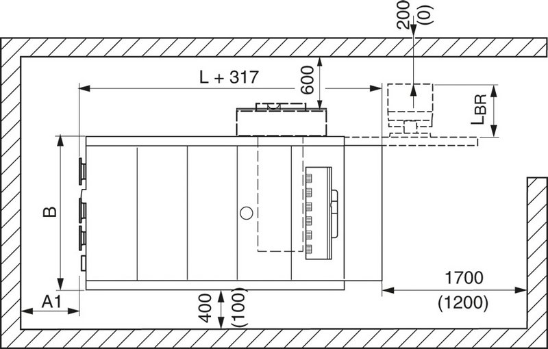
Použití, specifikaci a aktuální grafické rozkresy jednoduše ověříte kliknutím na následující odkaz, který Vás přesměruje na katalog náhradních dílů Junkers, Bosch a Buderus.
Výška: |
76,00 mm |
Šířka: |
164,00 mm |